Land Scarlet: Property for sale in Bedar












Description
A large plot of rustic land of 18,356m2 located in beautiful countryside with sea and mountain views and a licence for building a 230m2 house near the village of Bedar in Almeria, Andalusia.
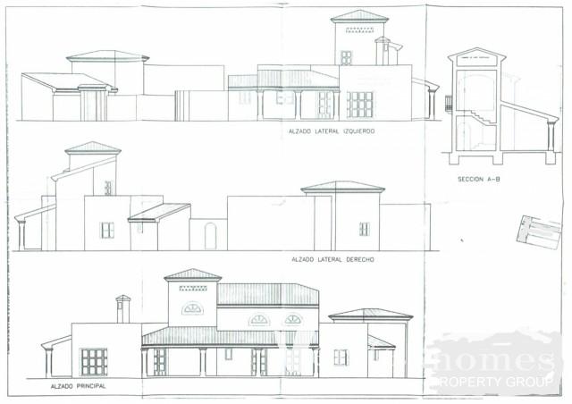
The rustic land is being sold with a project in place to build a 2 floor single family dwelling of 230m2 with 4 bedrooms and 4 bathrooms arranged around a central courtyard. The plans have two sitting rooms, a dining room, kitchen, utility room and an office. The project has a unique design and the finished house would make an amazing home with gorgeous views set in a very peaceful location and near to the Buddhist Centre. Water and electricity points for connection are close by.
This price is for the land and the project. It does not include the costs of building the property, these would be incurred by the purchaser.
Location: Situated along an asphalted rural road. 600m above sea level. 6.5 km from Bedar town or a 15 minute drive. See the pin on google maps above.
Airports
Almeria airport is a 35-minute drive, Murcia airport is 1 hour 10 minutes, Alicante airport is 2 hours and Malaga airport is 2 hours 30 minutes.
4 Golf Courses
Mojacar: Marina de la Torre, Vera: Valle del Este, Cuevas de Almanzora: Desert Springs, Pulpi: Aguilon Golf.
About Us
Mojacar Estates have been running successfully as an independent property sales and holiday rentals agency since 1982. Our dedicated team, who have all been working within this industry for more than 20 years, offer a professional and knowledgeable service to our clients. Our team speaks fluent Spanish, English and German. We offer properties for sale and rental in Mojacar and surrounding areas of Almeria, including Turre, Garrucha, Vera Playa, Los Gallardos, Villaricos and San Juan de los Terreros.
The indicated price does not include the taxes and expenses derived from the sale (ITP at the current tax rate, notary, registration and lawyer fees). We remind you that as a consumer you have the right to be informed and given the corresponding informative documentation, depending on the case, based on the provisions of Decree 218/05 of 11 October which regulates the Regulations on Consumer Information in the sale and rental of housing in Andalusia.
Approximate purchasing costs
Net price
€119,000
IVA - 10%
€11,900
Land registry - approx.
€298
Notary fees - approx.
€700
Conveyancing - approx.
€1,500
* Depending on the individual circumstance of each purchaser there may be some tax break to benefit from.
Standard forms of payment
Reservation deposit
€3,000
Remainder of deposit to 10%
€8,900
Final Payment on completion
€107,100
Please note that with the market liberalization the costs for utilities such as water, electricity, telephone, broadband, etc. will vary from supplier and these are normally based on usage. With regards to building and contents insurance, the cost of the policy will depend on several factors including the amount of cover needed. For those using the property as a second home or investment there is also an annual tax payable to the Spanish tax authorities and which is based on the fiscal value of the property.
For more information about the property including all the legal documentation as set out in the regional decree 218/05 of 11th October please visit our office or contact us by phone or e-mail. Property viewings are strictly by prior appointment only.
Mortgage calculator
Energy Certificate
Pending
Add to shortlist
Land Scarlet — VHMX 2786
Land for sale in Bedar, Almeria
€119,000 ~ £103,887 *
- Land area 1.8356 hectares
- Water Mains
- Electricity Mains
- Telephone Possible
- Internet Possible
Special Features
- Plot with project
- Licence in place
- Unique design
- Sea & mountain views
- Beautiful countryside
- 15 mins from Bedar
- 30 mins from the beach
Location: by clicking to enlarge the map shown below you will be able to see the exact location of the property, have a look at the street and aerial views, zoom it in and out, etc.
Golf Courses: Marina de la Torre in Mojacar, Valle del Este in Vera and Desert Springs in Cuevas del Almanzora are the nearest golf courses to Mojacar, Vera Playa y Huerta Nueva.
Property for sale in Mojacar, Almeria has grown in popularity over the years with the weather in this vibrant corner of Andalucía offering over 320 days sunshine a year, services such as bars and restaurants being opened all year round, excellent infrastructure, etc. makes Mojacar and its surrounding areas such as Turre, Los Gallardos, Huerta Nueva, Garrucha, Vera Playa, Bedar, etc. an ideal location for finding your dream holiday home in sunny Mojacar or close by.
Airports: the 5 nearest airports to Mojacar are: Almeria 45 minutes, Murcia 1 hour and 15 minutes, Alicante 2 hours, Granada 2 hours and 20 minutes and Malaga 2 hours and 45 minutes.

Contact us
All fields are required
What our clients said…
We used Veritas estate agents to both buy and sell our property, and André could not have offered a more professional service whilst providing what has been a very personal touch.
The help we were given every step of the way, from agreeing the purchase through to completion was second to none, and made the experience easy and as smooth and problem free as possible.
André's expertise in the legal side of matters proved invaluable to us.
The personal touch did not end on completion. André made it clear that he was only a phone call away to help / advise us on any problems we might face, or information we might want or need regarding all aspects of our life in Spain. We called on him regularly, and true to his word he was always graciously obliging....he was a godsend to us!
Sadly we had to sell our house, but had no hesitation in asking Andre to act on our behalf, which again was achieved with much expertise, care and consideration.
We would like to buy again in Mojacar one day, and we will definitely be using Veritas to help us find our next property.
We really can not recommend Veritas, (Andre and his team) and the service they provide highly enough!
— Mark and Trish Barford, Lincolnshire, UK